NOTRE APPROCHE
Notre bureau de dessin technique en stabilité, situé près de Namur, met son expertise au service des professionnels de la construction et de leurs clients à travers toute la Wallonie et Bruxelles.
Forts d’une solide expérience dans le domaine de la stabilité des structures, nous accompagnons chaque projet — de la conception des plans à la réalisation du modèle final — avec précision, rigueur et sens du détail.
Nous collaborons étroitement avec des ingénieurs, architectes et entrepreneurs actifs à Liège, Charleroi, Mons, La Louvière, Tournai, Namur et Bruxelles, afin de garantir des plans conformes aux normes en vigueur et parfaitement adaptés à chaque besoin en construction.
Nous collaborons avec les bureaux d'études stabilité, architectes et entrepreneur
Collaborons avec les bureaux d'études stabilité
Nous collaborons avec les bureaux d’études en stabilité pour la réalisation de plans de stabilité, de calculs de structure et de dessins techniques précis en béton, acier ou bois.
Collaborons avec les architectes
En coordination avec les architectes, nous intégrons le dessin de stabilité et les calculs de structure dès la conception, afin de garantir la cohérence et la fiabilité du projet.
Collaborons avec les entrepreneurs
Nous collaborons avec les entrepreneurs pour la réalisation de plans de stabilité et de plans d’exécution précis, adaptés aux besoins du chantier et aux exigences techniques.
Une approche intégrée pour des structures fiables
L’étroite collaboration entre nos équipes, les architectes, les bureaux d’études en stabilité et les entrepreneurs en construction nous permet de comprendre chaque projet dans son ensemble et de garantir des plans de stabilité et dessins techniques parfaitement intégrés à la conception architecturale.
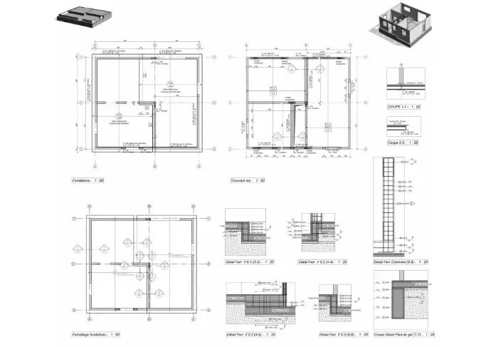
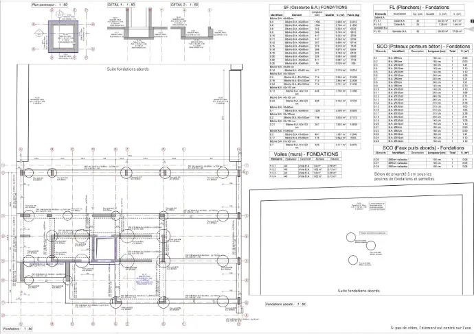
Nos études de cas
Découvrez quelques-uns des derniers projets de construction et de stabilité des structures sur lesquels notre bureau de dessin technique a eu le plaisir de collaborer.
Chaque étude de cas illustre notre savoir-faire dans la conception de plans précis, la création de modèles 3D et le suivi technique de projets menés avec soin pour nos clients à Namur, Liège, Charleroi, Mons, La Louvière, Tournai et Bruxelles.
Grâce à une approche rigoureuse et une parfaite compréhension des besoins de nos partenaires — architectes, ingénieurs et entrepreneurs — nous transformons chaque projet en une réalisation concrète, durable et conforme aux normes de la construction moderne en Wallonie et à Bruxelles.
Nos logiciels
Notre bureau de dessin technique utilise des outils reconnus comme Revit, Buildsoft, Advance Steel et AutoCAD pour la modélisation 3D, le calcul de stabilité et la conception de plans détaillés répondant aux exigences les plus élevées du secteur de la construction.
Nos services en dessin de stabilité vous intéressent ?
Ensemble, trouvons la meilleure solution pour vos plans de stabilité, vos calculs de structure et vos projets de construction, qu’ils soient résidentiels, industriels ou publics.



