Se rendre au contenu

Services

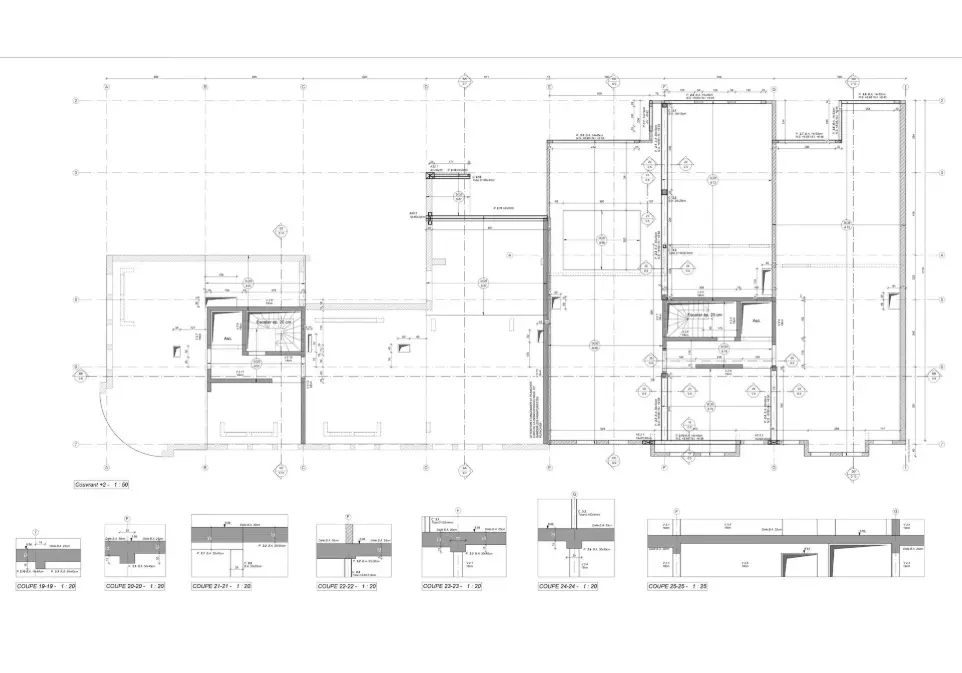
Plan stabilité coffrage
Plan de stabilité

Nous réalisons des plans de stabilité détaillés pour garantir la solidité et la sécurité de vos structures. Nos dessins techniques respectent les normes en vigueur et sont adaptés aux exigences spécifiques de chaque projet, qu’il s’agisse de constructions neuves, de rénovations ou d’extensions.  

Plan 3D BIM REVIT
Modélisation 3D et BIM  

Grâce aux technologies avancées de DAO et BIM, nous créons des modèles 3D précis qui permettent une meilleure visualisation du projet et une coordination optimale entre les différents intervenants. Cette approche améliore l’efficacité du chantier et réduit les risques d’erreur.  

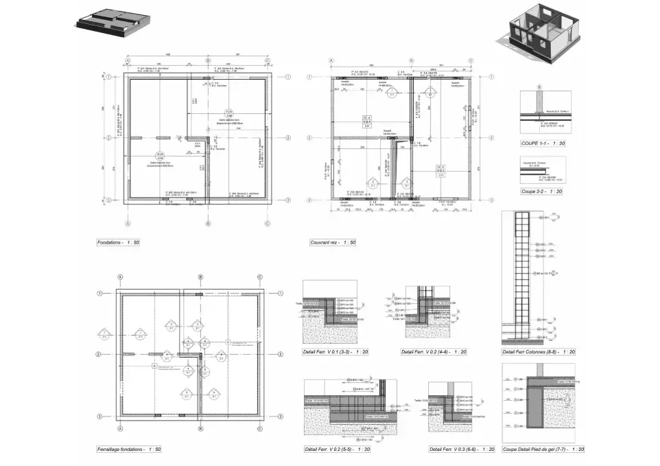
Plan d'excécution, ferraillage coffrage
Plans d’exécution  

Nous fournissons des plans d’exécution clairs et détaillés pour faciliter la mise en œuvre des travaux. Ces documents essentiels assurent une communication fluide entre les ingénieurs, entrepreneurs et artisans, garantissant ainsi un chantier efficace et bien organisé.  

Calcul Structure stabilité
Études de faisabilité technique  

Avant d’entamer un projet, nous analysons la faisabilité technique de votre structure en prenant en compte les charges, les contraintes du sol et les réglementations en vigueur. Cette étape permet d’optimiser la conception et d’éviter les problèmes potentiels.  

Plan stabilité, suivi chantier
Suivi technique et assistance  

Nous accompagnons nos clients tout au long du projet en offrant un suivi technique et une assistance personnalisée. Nous restons disponibles pour répondre aux questions, ajuster les plans et garantir la bonne exécution des travaux.  

Plan stabilité dessin
Optimisation des structures  

Nous cherchons à concevoir des structures optimisées en termes de coûts et de matériaux, tout en respectant les impératifs de sécurité et de durabilité. Cette approche permet de réduire les dépenses tout en garantissant une construction fiable et pérenne.