Notre Bureau
Bienvenue au sein de notre bureau de dessin technique en stabilité, situé près de Namur et actif dans toute la Wallonie et à Bruxelles.
Nous mettons notre expertise au service des professionnels de la construction et de leurs clients, pour concevoir des plans précis, des modèles fiables et des solutions techniques adaptées à chaque projet. Notre mission : garantir la stabilité, la qualité et la pérennité de vos réalisations.
Notre histoire
Après quatre années d’expérience au sein de bureaux d’études en stabilité, j’ai choisi de poursuivre mon parcours comme indépendant complémentaire, tout en développant mes compétences directement sur chantier.
Fort de cette double expérience — à la fois technique et pratique — j’ai décidé de fonder mon propre bureau de dessin en stabilité, au service des professionnels de la construction et de leurs clients à Namur, Liège, Charleroi, Mons, La Louvière, Tournai et Bruxelles.
Aujourd’hui, je conçois des plans et des modèles précis, conformes aux normes en vigueur, pour garantir la stabilité et la fiabilité de chaque projet, du concept à la réalisation.

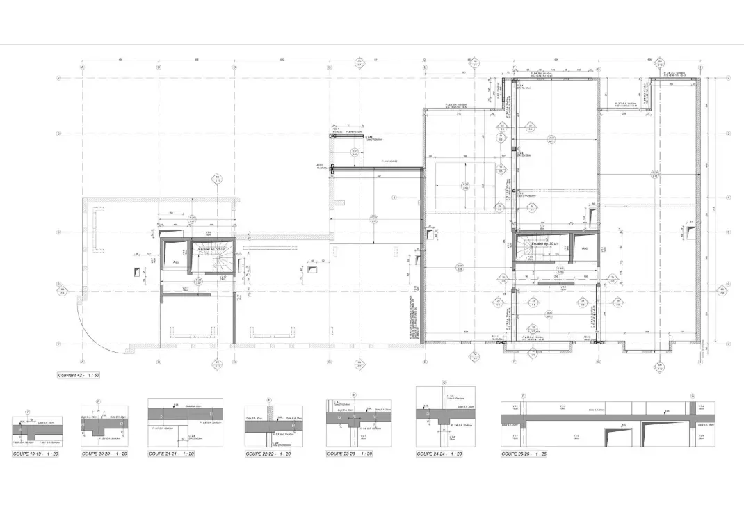
Dessinateur en stabilité / Modeleur BIM
Spécialisé dans le dessin technique en stabilité, notre bureau met son savoir-faire au service des professionnels de la construction et de leurs clients dans toute la Wallonie et à Bruxelles.
Fort d’une solide expérience acquise au sein de bureaux d’études en stabilité et sur le terrain, nous concevons des plans précis et des modèles 3D complets, conformes aux normes en vigueur et adaptés à chaque type de projet — résidentiel, industriel ou tertiaire.
Notre approche repose sur la rigueur, la communication et la compréhension des besoins du chantier. Grâce à l’utilisation de logiciels performants tels que Revit, Buildsoft, Advance Steel et AutoCAD, nous garantissons un travail de qualité, alliant technicité, efficacité et fiabilité.
Toujours à l’écoute de nos partenaires — architectes, ingénieurs, entrepreneurs et maîtres d’ouvrage — nous assurons une collaboration fluide et une exécution maîtrisée, de la conception des plans à la concrétisation du projet sur le terrain.

Nos Valeurs
Notre bureau s’engage à respecter les normes en vigueur, les délais et les objectifs techniques. Nous veillons à offrir à nos clients des solutions cohérentes, documentées et conformes aux attentes des acteurs du secteur de la construction.
